

• Viel Platz für große Pläne: Dein 250 m² Loft-Quartier in Rheinsberg!
Urlaub mit der ganzen Clique oder der Großfamilie? In unserer großzügigen Ferienwohnung im Herzen von Rheinsberg müsst ihr keine Kompromisse eingehen. Auf über 250 m² Wohnfläche verbinden wir geselliges Beisammensein mit maximaler Privatsphäre.
• Das Highlight: Freiraum für alle
Vergesst das Schlangestehen am Morgen! Jedes unserer vier geräumigen Zimmer bietet euch:
• Eigenes, modernes Duschbad direkt am Zimmer.
• Privater Flat-TV als persönlicher Rückzugsort.
• Bequeme Betten (Aufbettung auf Anfrage möglich).
• Highspeed W-LAN in der gesamten Wohnung inklusive.
• Kochen, Bar-Feeling & Gemeinschaft
Das Herzstück der Wohnung ist der riesige offene Wohn- und Essbereich. Ob gemeinsames Kochen in der voll ausgestatteten Profi-Küche oder ein Absacker an der hauseigenen Bar – hier entstehen Erinnerungen.
✨ Wohlfühl-Ambiente: Stylisches Design mit sichtbaren Deckenbalken.
• Entertainment: Großer Flat-TV für gemütliche Filmabende.
• Extra-Komfort: Separates Gäste-WC & Hauswirtschaftsraum mit Waschmaschine & Trockner.
• Top-Lage mit maximaler Privatsphäre
Ihr residiert im 1. Obergeschoss eines markanten Gebäudes. Dank des eigenen Eingangs und der riesigen Garderobe seid ihr völlig unabhängig.
• Mittendrin: Cafés, Restaurants und das Rheinsberger Schloss sind nur wenige Gehminuten entfernt.
• Ruhig gelegen: Trotz zentraler Lage genießt ihr hier eure Ruhe.
• Unser Service für euch
Wir lassen euch nicht allein! Unser nettes Team vor Ort versorgt euch mit den besten Insider-Tipps für die Region, tolle Ausflugsziele oder die leckersten Restaurants der Stadt.
• Bereit für eine unvergessliche Zeit?
Ob Teamevent, Familientreffen oder Aktivurlaub – sichert euch jetzt euer Wunschdatum in einer der außergewöhnlichsten Unterkünfte Rheinsbergs!
| Geräte & Medien: | Internet, WLAN |
|---|
Willkommen in Ihrer perfekten Unterkunft für unvergessliche Tage in Rheinsberg! Diese großzügige Ferienwohnung mit über 250 m² Wohnfläche bietet Familien und Gruppen reichlich Platz und Komfort. Hier finden Sie alles, was Sie für einen entspannten und unbeschwerten Aufenthalt brauchen.
Zentral und dennoch ruhig gelegen, befindet sich die Wohnung im 1. Obergeschoss eines gepflegten Hauses – nur wenige Schritte vom charmanten Zentrum von Rheinsberg entfernt. Cafés, Restaurants und Sehenswürdigkeiten sind bequem erreichbar. Dank des eigenen Eingangs genießen Sie maximale Privatsphäre und Unabhängigkeit.
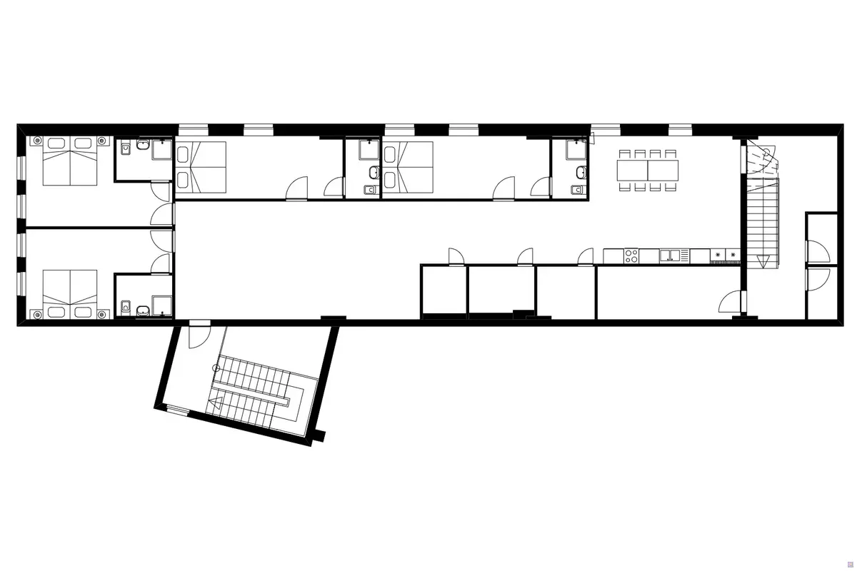
Mit vier großzügigen Zimmern, die jeweils mit eigenem Duschbad und TV ausgestattet sind, haben alle Gäste ihren persönlichen Rückzugsort. Ideal für Familienmitglieder oder Freunde, die sich zwischendurch auch einmal zurückziehen möchten.
Der große Aufenthaltsraum lädt zu gemütlichen Abenden ein. Hier können Sie auf bequemen Sitzmöbeln entspannen, einen Film schauen oder einfach die gemeinsame Zeit genießen. Für kulinarische Highlights steht Ihnen eine moderne, voll ausgestattete Küche zur Verfügung. Der angrenzende Essbereich mit Bar ist perfekt für gesellige Mahlzeiten und lange Abende in fröhlicher Runde.
Zusätzlich sorgen separate Gäste-WCs für noch mehr Komfort und beugen gerade bei größeren Gruppen Wartezeiten vor.
Ein besonderes Extra ist die persönliche Betreuung durch unser Team, das Ihnen während Ihres gesamten Aufenthalts zur Seite steht. Ob Sie Fragen zur Umgebung haben, Tipps für Ausflüge brauchen oder ein Anliegen haben – sie ist jederzeit für Sie da und sorgt dafür, dass Sie sich wohlfühlen.
Erleben Sie unvergessliche Urlaubstage in einer der schönsten Gegenden Deutschlands! Ob entspannen, aktiv sein oder einfach Zeit mit Ihren Liebsten genießen – diese Ferienwohnung ist der perfekte Ausgangspunkt für Ihre Auszeit. Kontaktieren Sie uns noch heute und sichern Sie sich Ihr Wunschdatum!
Insgesamt verfügt die Wohnung über 250 qm. Es gibt 3 Schlafzimmer für jeweils 2 Personen und eins für 3 Personen mit Duschbad en Suite. Im Wohnbereich findet ihr 2 Sofalandschaften, die auch mit jeweils bis zu 2 Personen zum Schlafen genutzt werden können. In der gesamten Unterkunft ist WLAN inklusive, in den Schlafzimmern und im Wohnbereich befinden sich Smart TV´s.
Im Flur gibt es 2 Gäste WC´s und eine Waschmaschine und ein Trockner. Zudem stehen euch Flügeltrockner zur Verfügung.
Es ist ein privater, aber kostenpflichtiger Parkplatz (8 Euro/24 Std./PKW) in ein paar Metern erreichbar.
Eine weitere Ferienwohnung im HostelStyle für 18 Personen (Aufbettung möglich) ist ein paar Schritte entfernt und zusätzlich buchbar.
| Entfernungen: | Freibad (1,5 km), See (0,3 km), Bahnhof (0,5 km) |
|---|
Rheinsberg ist nicht nur irgendein Städtchen – es ist ein echtes Highlight! Mit seinem beeindruckenden Schloss, den wunderschönen Seen und der lebendigen Kulturszene zieht es Besucher aus nah und fern an. Mittendrin, wartet die Rhinpassage auf dich – der perfekte Spot zum Bummeln, Entdecken und Genießen. Hier gibt’s alles, was das Herz begehrt: coole Shops, kreative Kunst und leckeres Essen – also, worauf wartest du?
Inmitten der Rheinsberger Seenlandschaft, fast am Ursprung des Rhin, befindet sich das "RhinQuartier" als Teil der Rhinpassage.
Ihr findet hier die berühmte Rheinsberger Keramik, mit "Dit Atelier Kunterbunt" und dem "Smoke & Smile" zwei unfassbar kreative und ungewöhnliche Läden, die zum schnökern und shoppen verführen.
Es gibt Restaurants, kleine Läden und jede Menge Kurzweil`.
Hinter dem Rhin Quartier plätschert der Rhin und wächst von hier langsam zur Bundeswasserstraße "Rheinsberger Gewässer" auf 129 km.
Und rings um uns herum viele herrlich klare Seen, die zum Wandern, Wassersporteln, Radeln, Paddeln, Bootfahren und vielem mehr einladen. Das zauberhafte "Schloß Rheinsberg" lädt zur Besichtigung und die alljährlichen Veranstaltungen der Rheinsberger Kammeroper locken jedesmal unzählige Musikbegeisterte aus aller Welt nach Rheinsberg, ebenso wie die berühmten Kunsthandwerker- und Töpfermärkte. Das nahegelegene Linow hingegen lässt ein mal im Jahr, meist Anfang September, mit der "Rock Party Linow" die Meute rocken!
All das sind Gründe, für eure Auszeit mit max.16 Personen (Aufbettungen möglich) in unserer Unterkunft (16 Personen + 18 Personen in unserer Hostel-Style FeWo). Ihr könnt hier chillen, feiern, die Gegend und die Zeit mit Freunden und Lieben genießen. In diesem Inserat stellen wir euch unsere Ferienwohnung im Loft-Style vor.
Vergleichspreise (unverbindlich):
| 30,00 € | Übernachtung |
|---|---|
| 180,00 € | Pauschalpreis pro Nacht |
Die Gäste müssen mindestens für 2 Nächte buchen
- Pauschalpreis gilt für Belegung mit 6 Personen, jede weitere Person berechnen wir mit 25€
- pro Aufenthalt werden zusätzlich 180 Euro für die Endreinigung berechnet
- Bettwäsche pauschal einmalig 5€ gleiches gilt für Handtücher
- zum Waschen und Trocknen stehen entsprechende Geräte mit Münzer zu Verfügung
Weitere Informationen zur Verfügbarkeit und Preise erhalten Sie direkt über rhinquartier.de
Es sind noch keine Bewertungen vorhanden.
Es sind noch keine Bewertungen vorhanden.
Danke. Ihre Bewertung wurde verschickt.
Danke. Ihre Belegungsanfrage wurde verschickt.
| Anmeldung |
| RhinQuartier |
| Herr Dirk Pospiech |
| +49 (0179) 7549206 |
| +49 (01516) 8453579 |
| Zur Webseite |
| Anmeldung | Hausanschrift |
| RhinQuartier | RhinQuartier Ferienwohnung im Loft-Style |
| Herr Dirk Pospiech | Damasckeweg 2b |
| +49 (0179) 7549206 | 16831 Rheinsberg (Mark) |
| +49 (01516) 8453579 | |
| Zur Webseite |
Bitte teilen Sie dem Haus Ihre Belegungswünsche unverbindlich mit.
Bitte teilen Sie dem Haus Ihre Belegungswünsche unverbindlich mit.
Mit dem Absenden stimmen Sie den Datenschutzbestimmungen
von gruppenunterkuenfte.de zu.
Mit dem Absenden stimmen Sie den Datenschutzbestimmungen zu.
Passend zu Ihrer Suchanfrage für Häuser in der Nähe